(949) 359-6449
Contact
shop

Support HOPE

Donations: (949) 240-0441

Joshua House Renovation Project


When the Nelson family submitted the design for their single-family home on Loma Lane to the city's building department in August of 1958, the plan was similar to a napkin sketch.


Original Floorplan, 1958
Original Floorplan, 1958


That simple drawing became a home where families were raised, memories were made, and life unfolded in all its glory. But the most extraordinary chapter began in 2009, when this single-family residence became a place of hope for men in recovery. Now, it's time to prepare it for the next chapter.

For many years, this San Clemente property has been home to real change. Men arrive carrying the weight of addiction. Their relationships are fractured. Their futures feel uncertain. Yet within these walls, lives change. They learn recovery is possible.


The house has served faithfully, but the wear of time now threatens its ability to continue this vital mission. What's needed goes beyond simple repairs. We must reimagine this space entirely, transforming it from a single-family dwelling into a true recovery residence where healing can flourish for decades to come.


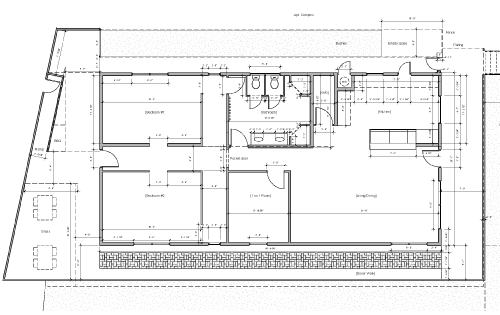
The contrast between then and now tells its own story. Where the 1958 design was a simple sketch with basic room divisions, today's plan reflects decades of understanding about what recovery environments truly need. This isn't guesswork. It's intentional planning informed by years of walking alongside men on their healing journey.

Proposed Floorplan, 2025
Proposed Floorplan, 2025


The new layout carefully balances individual space with communal areas, with space for both private reflection and shared experiences. Each modification helps with the daily life in recovery: from morning routines that require adequate facilities, to evening meals that build brotherhood, to quiet spaces where men can process their growth. This detailed blueprint ensures that when residents walk through the door, they enter a place designed to support their journey forward.

Here is what we're doing to address every aspect of communal living. Expanding the bathroom facilities gives each resident the privacy fundamental to personal dignity. Reimagining the kitchen and dining spaces creates room for the shared meals where real community builds and men learn to support one another's journey. Installing energy-efficient appliances and windows uses resources responsibly while reducing long-term costs. Upgrading the plumbing infrastructure provides the reliability that stable recovery requires. Enhancing storage capacity allows better food management, meeting residents' daily needs.


These aren't luxury upgrades. They're necessities that create the foundation for lasting change. Every design choice reflects our commitment to treating these men with the dignity they deserve as they rebuild their lives.

The full renovation requires approximately $250,000, so we're inviting 250 individuals to join us with contributions of $1,000 each. Your donation doesn't just renovate a building. It creates a setting where lives are rebuilt, purpose is rediscovered, and lasting freedom becomes possible.


No contribution is too small to matter. Whether you give $1,000, $100, or any amount between, you become part of this work. Every dollar goes directly toward creating a place where healing becomes possible and hope is reborn.


When we surpass our $250,000 goal, those additional resources expand our capacity to serve even more men seeking recovery. Your generosity helps not just the residents of Joshua House, but their families, their communities, and the generations that follow them.


Past Joshua House Residents
Past Joshua House Residents


Think about the father who will hold his children again with hands no longer shaking. Picture the son who will step into his calling with a clarity he's never had. Imagine the brother who will finally know what freedom feels like. These aren't distant dreams. They're the real outcomes your partnership makes possible.

Help us make a difference.

Whatever you're able to give becomes part of something bigger. Together, we're building more than updated facilities. We're creating changed lives and lasting hope.